Cami de Cabanyes

Imágenes del proyecto

Ficha del proyecto

Tipología: vivienda

Ubicación: Castalla, Alicante.

Año: 2005

Superficie: 2000m2

Número: 024

Tamaño: M

Presupuesto: 1600000

Equipo: vicente iborra (arq) | Javier Yáñez (arq) | ivan capdevila (arq)

LA CASA PLURIFAMILIAR_ Una Pieza Extraña y Familiar

1. La casa plurifamiliar.
Dos hechos muy particulares han hecho de su localización algo característico. En primer lugar, por estar situada a espaldas de la calle Mayor. En la trama urbana se aprecia cómo sus medianeras no están definidas por edificación sino por los jardines traseros de estas “casas señoriales” del s. XVIII. En segundo lugar, se levanta en la calle “Camí de Cabanyes”, antigua salida de carrozas y mercancías hacia Alicante. La edificación existente solía ser, de hecho, una posada en la que, además, los animales pasaban la noche.

Tal vez por esta razón romántica, el planeamiento la ha incluido dentro del caso histórico de Castalla siendo, de hecho, la única por debajo de la C/ Mayor que adquiere esta condición. Al dotar de las mismas cualidades a esta nueva edificación que todos los distintos grupos de casas (desde las señoriales hasta las más populares) que conforman el caso histórico, nos encontramos dirigidos, en un primer instante, a construir una casa grande más que un edificio con casas pequeñas.

¿Podríamos construir una sola casa en la que conviviesen varias familias?

Sin duda, la preferencia por vivir en una “casa” es mayor que en un “piso”. El reto es, precisamente, proponer viviendas experimentadas como “casas” pero usadas como “pisos”, con las ventajas espaciales de lo que se entiende por “casa” y las ventajas funcionales de lo que se entiende por “piso”. Aquí radicaría nuestra idea de CONFORT.

De hecho, la escala de la intervención y su contexto más inmediato (calle precaria sin acera, jardines y huertos traseros, la cercanía a la plaza del pueblo…) hacen pensar que las relaciones de sus habitantes con los elementos que formarán la comunidad de vecinos (el jardín posterior, la tapia lateral, el patio, la azotea, las escaleras…) son de una intimidad más propia a la vivienda unifamiliar que al edificio plurifamiliar.

Construimos una casa plurifamiliar.

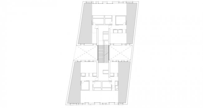
El Patio Exterior
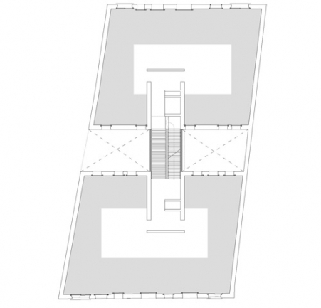
Los 25m de profundidad edificable niegan, a priori, la viabilidad de alojar a varias familias.

Rompemos el concepto tradicional de que toda vivienda tenga fachada a la calle y apostamos por dos maneras de disfrutar el paisaje lejano: la vida del pueblo (plaza, casa de cultura, centro social, etc.), por un lado, y el paisaje de las montañas (Sierra del Menejador), por otro.

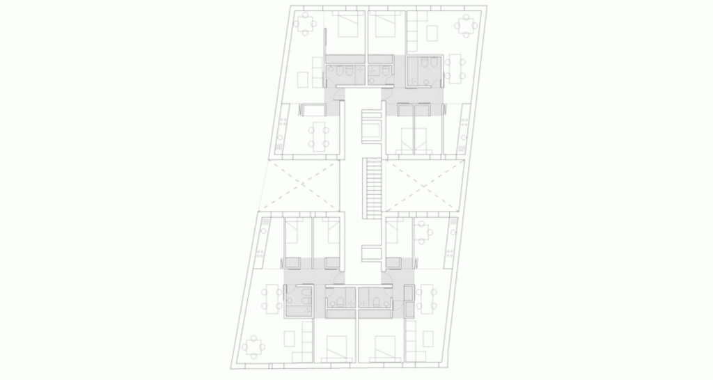
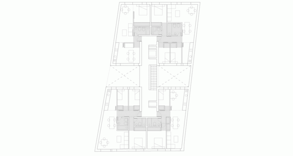
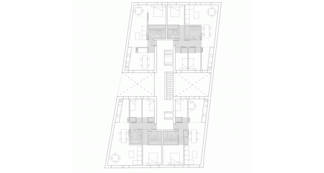
Colocamos un determinado volumen de aire en forma de patio aproximadamente en la mitad de la profundidad marcando el umbral entre los que viven en el pueblo y los que viven en las montañas.

El ancho del patio pasará de los 3m normativos a los 4m característicos. De este modo, no sólo conseguimos meter “más luz” e intimidad sino que conseguimos construir un ambiente propio más íntimo y blanco. Aparecen, por tanto, dos fachadas interiores que deberán establecer una relación especial con el exterior como las principales.

Este patio no está cerrado lateralmente, teniendo incluso dos alturas libres con vistas directas hacia el Castillo. No es sólo un volumen de aire inerte, sino que tiene vida. El hecho de colocar las escaleras y circulaciones en su espesor, hace que cada habitante participe de él y de sus relaciones exteriores en su cotidianeidad.

Convertimos un patio interior en exterior.

Esta decisión contribuye a evitar que este vacío se entienda como una separación entre los vecinos que viven a ambos lados. Estratégicamente, ambos lados de la intervención se trabajarán de un modo simétrico para enfatizar la idea de construir una sola pieza-casa, en este caso vaciada en su interior.

La calle jardín
A pesar de la densa trama que define el casco histórico, existen grandes vacíos interiores de jardines y huertas, que cuentan parte de la historia no evidente de aquellas casa señoriales del s. XVIII.

El acceso a esta casa plurifamiliar, es una oportunidad urbana para acceder a este mundo interior que siempre ha estado tan presente como oculto. El acceso se convierte, por tanto, en doble.

Toma la forma de calle lateral que conecta Camí de Cabanyes con el verde interior. Por aquí accederán vehículos, residentes, peatones y, en caso normativo, bomberos. Este hueco profundo enmarcará el paisaje posterior a modo de lienzo urbano conformado por una tapia lateral que definirá la propiedad, la intervención y dos comienzos: el de la calle y el del oasis hasta ahora inexistente.

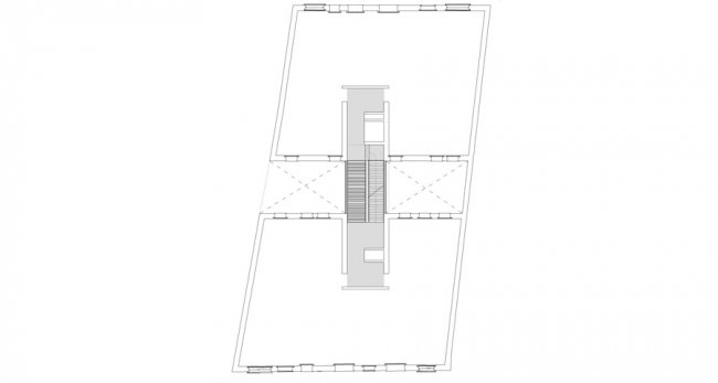
La sección
Una de las diferencias intrínsecas entre casa y piso es la aparición de la altura libre mínima establecida por la legislación urbanística actual. Esto ha llevado a igualar todos los pisos de vivienda a 2,50m de altura libre.

Mediante un aprovechamiento exhaustivo de los vacíos de la Normativa Urbanística manipulamos las alturas libres de la sección. Si en una primera instancia, la opción de afrontar los 10m de altura de co
isa era la de dividir entre tres para obtener tres alturas libres iguales, en segunda instancia fue la de dotar a cada piso de una altura distinta. De este modo, cada usuario se identificará con una altura de la casa.

En PB, el forjado puede bajar hasta 1,5m sin ser considerado sótano. La altura total ya no es 10 sino 11,5m. Esto permite, insertar otra altura más en PB a modo de altillo. La vivienda en PB, de este modo, se convierten una casa de tres alturas.

En planta superior, podemos apropia
os del volumen de aire generado por la inclinación de los planos de cubierta. Por lo tanto, el suelo estará normativamente a 2,5m de la co
isa, pero a 4, 4.2 y 4.85m de sus techos, los cuales definirán un paisaje interior muy particular de luce
arios y otras relaciones con el exterior. La vivienda en planta superior, de este modo, se convierte en una casa con techos inclinados.

Al haber ajustado normativamente la planta inferior el máximo hacia abajo y la planta superior el máximo hacia arriba, conseguimos liberar el máximo de altura para la planta intermedia. La vivienda en planta intermedia, de este modo, se convierte en una casa alta.

Lejos de edificio de 10 pisos conseguimos construir 10 casas dentro de una casa.

2. Pieza extraña y familiar
Intervenir en un contexto tan cerrado como el de un pueblo nos hace reconocer una serie de rasgos de familiaridad que definen el punto de contacto con la propuesta y que acaban convergiendo en el concepto de propiedad indisoluble al concepto de casa. Queremos hablar del hecho de cierta necesidad de individualizarse mediante el reconocimiento de pertenencia a cierto objeto, en este caso, a cierta casa. “En esta casa vive él; pero en ésta vivo yo.“

Acerca de las cubiertas
Con el paso del tiempo se ha ido construyendo un paisaje singular definido por las cubiertas del pueblo. Desde la calle resulta a veces difícil distinguir los límites exactos de cada propiedad, dado que siempre ha habido una cierta tendencia a alinear las co
isas vecinas así como balcones ventanas u otros elementos representativos, al mismo que se construía cierta imagen de calle. Sin embargo, cuando alcanzamos cierta altura, especialmente desde el Castillo, podemos observar con claridad cómo la diferencia entre casas se establece precisamente por la desvinculación de sus cubiertas. Desde este punto estratégico sería relativamente fácil hacer un plano cronológico de las distintas propiedades en las inmediaciones de la parcela. Nos aprovechamos de esta condición para construir un paisaje extraño de cubiertas que identificarían precisamente lo que tienen debajo. Cada espacio interior de la casa tendría su interpretación exterior a través de su cubierta.

Acerca de la fachada
Siguiendo la idea de “lo familiar” reinterpretamos la estrategia del hueco como la manera especial que ha construido el umbral entre interior y exterior.

Si bien existe en el pueblo una diferenciación evidente en la construcción de huecos de fachadas principales representativas y fachadas traseras de servicio, apostamos –dada la condición ambigua del emplazamiento- por una fachada híbrida entre los conceptos de representación y servicio.

Proponemos tres tipos de hueco:

El hueco profundo: la profundidad de la fachada como imagen de casa y de confort interior. De dimensiones reducidas, se distribuyen de un modo aparentemente aleatorio por la fachada. Su espesor da pie a la expresión individual mediante la “decoración” de la repisa.
El hueco climático: el único de altura igual a la estancia que abre. Mediante la extensión de su persiana se permite ventilar el interior mientras se protege de la radiación solar, creando un ambiente fresco y de penumbra en su interior.
El hueco invisible: una importación ajena al pueblo. Mediante la protección de chapa perforada o similar del mismo color que la fachada, se construye simultáneamente una imagen difusa desde el interior y se dota de cierta textura al paramento exterior.

La disposición de huecos permite una libre partición de cada vivienda creando distintas relaciones entre grupos de huecos y distintas configuraciones interiores.
Por otra parte, su colocación dispersa permite no asociar la fachada a cierta repetición en altura más asociada a la construcción de pisos que a la de una casa plurifamiliar.

3. La casa pasante
La vivienda de nuestro tiempo no se ha construido, no se ha pensado. Hemos trabajado con factores de flexibilidad, de ambigüedad, de mínimos higiénicos. Pero nuestros hábitos han cambiado más rápida y radicalmente que su traslación espacial. Nuestros tipos siguen manteniendo la división noche-día de la vivienda mode
a, siguen estructuradas según funciones que estaban determinadas por los horarios de nuestros abuelos, se ordenaban según una vida familiar hoy cada vez más excepcional.

Desde la convicción, utilizamos de referencia dos series televisivas de actualidad como “Los Serrano” y “Aquí no hay quien viva”. Ambas, a través de sus personajes, muestran de un modo indirecto el espectro social actual. El jubilado, el soltero que se hecha novia, el recién divorciado, los que comparten piso, el que hace fiestas los fines de semana, los hijos que quieren vivir separados de los padres, los que visitan a la abuela, la pareja que acaba de tener un bebé, etc. son los nuevos personajes que tendrán cabida en este nuevo trozo de ciudad.
Las tipologías hablarán de adaptabilidad, asumiendo la cualidad cambiante y transitoria de sus usuarios. Cualquiera de ellos puede ir adoptando un nuevo rol con el paso del tiempo, pasando de un caso a cualquier otro. La vivienda podrá adaptarse/asumir de un modo sencillo los cambios en la vida de una persona.

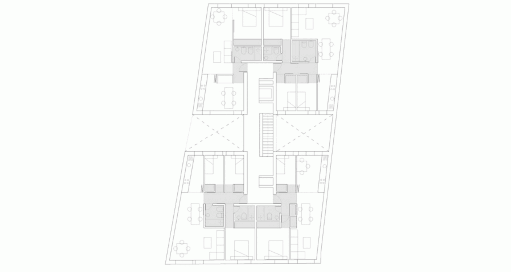
Para ello proponemos un tipo de vivienda en la que existe una parte central interior servidora, y otra perimetral (alrededor de la anterior) libre exterior servida. En el núcleo interior se concentran todos aquellos ámbitos de la vivienda que no son susceptibles de sufrir cambios con el paso del tiempo. Estamos hablando de cuartos húmedos, almacenaje y distribuidores. La red de distribuidores interiores de esta pieza está planteada de modo tal que siempre dote de servicio a cualquier sala o ámbito a su alrededor conservando, al mismo tiempo, la independencia con respecto a las otras. De este modo, planteamos una casa libre que gravita alrededor de la pieza interior y que puede ser particionada según la imaginación o necesidad del habitante. Independientemente de las distintas configuraciones interiores de la vivienda su parte interior fija seguirá ejerciendo las mismas funciones de servicio: aseos, almacenamiento y accesos.

No obstante, las viviendas están planteadas para que, independientemente de su configuración interior, estén estructuradas por lo que denominamos la “sala pasante”. Este es un espacio constituido por tres ámbitos compatibles y conectables como salón, comedor y cocina, que se dibujan adyacentes a cada medianería allí donde la pieza central servidora termina, de modo tal que conecten las dos fachadas de la vivienda. Se convierte, de este modo, no sólo en la única habitación con dos fachadas sino en una transición misma de ambientes desde el más íntimo vinculado al patio hasta el más público vinculado al pueblo. Se establece, así, una relación muy particular entre el habitante y las dos casas (la micro en donde vive él y la macro en donde vive la comunidad), definiendo de un modo directo sus ento
os inmediatos, mi casa (entre el patio y el pueblo), y la situación de esta con respecto al resto y la calle.

Deja una respuesta

Tu dirección de correo electrónico no será publicada. Los campos obligatorios están marcados con *

Scroll al inicio